
Realizar los cálculos y obtener los resultados de la instalación utilizando el programa AUDYTOR SET.zar el diseño y los cálculos de instalaciones de calefacción central, refrigeración central y suministro de agua en edificios, mediante el diseño en tres dimensiones, método de diagramas o tablas.
El método gráfico admite un diseño mucho más rápido que los demas metodos, ya que se pueden detectar errores con mayor facilidad, además de que el modelo 3D y la vista axonometrica de la instalacion se generan de manera automatica. La versatilidad del programa ofrece complementos para Autodesk® Revit®, que facilitan la importacion y exportacion de los proyectos.
En el diseño de calefacción por convección con AUDYTOR CC, podemos insertar y conectar radiadores de manera automatica, además de obtener los resultados en forma de tablas y de dibujos con resultados.
Palabras clave: software, calefacción, suelo radiante, modelo 3D.
El programa Audytor SET tiene tres módulos que permite realizar los cálculos y el diseño de las siguientes instalaciones:
• Instalaciones de calefacción central (Audytor CC),
• Instalaciones de enfriamiento central (Audytor EC),
• Instalaciones de suministro de agua (Audytor H2O).

En esta ocasión vamos a centrarnos en el módulo de instalaciones de calefacción central (Audytor CC).
En este módulo se incluye el diseño de instalaciones de calefacción por convección y suelo radiante, así con el ajuste de las instalaciones existentes . El programa nos permite diseñar las instalaciones mediante dos métodos, el de diseño mediante diagrama y diseño mediante proyecciones en planta.
El segundo método permite la creación automática y completa del modelo 3D de la instalación, de una manera rápida y versátil.

DISEÑO DE CALEFACCIÓN POR CONVECCIÓN
Para comenzar un diseño en el módulo de Audytor CC, primero debemos establecer los parámetros generales de la instalación. Existen parámetros que son de carácter obligatorio completarlos. Lo que nos va a permitir que el programa pueda realizar los cálculos requeridos.
Accedemos a los datos generales desde el menú de datos (general), en el lado izquierdo nos aparecen diferentes categorías de datos, que pueden tener datos predeterminados o completados por el diseñador (Fig. 2).
La primera categoría es la de datos básicos, aquí los únicos datos obligatorios a completar son los de la zona climática para calefacción, que también incluye los datos de temperatura de diseño exterior y media exterior.
Los siguientes datos que tenemos que completar están en la categoría de tuberías, aquí debemos seleccionar el tipo de tubería y aislamiento. Los datos de las demás categorías tienen valores predeterminados que según el criterio de cada diseñador se pueden cambiar o no.

INSERTAR Y CONECTAR RADIADORES
Una vez que hayamos insertado o dibujado directamente en el programa el modelo del edificio al que queremos diseñar las instalaciones de calefacción, Audytor nos ofrece una herramienta que nos permite insertar los radiadores de manera manual o automática y conectarlos a las tuberías de una manera rápida y simple.
Para insertar radiadores de manera manual seguimos los siguientes pasos:
- Nos situamos en la pantalla de dibujo, hacemos clic en la pestaña de radiadores y seleccionamos el tipo de radiador que queremos insertar. Si previamente hemos definido el tipo de radiador en las categorías de datos generales, cuando hacemos este paso nos va a aparecer el tipo de radiador seleccionado.
- Colocamos el cursor en frente de cada una de las ventanas y como tenemos un modelo lógico de nuestro edificio, el radiador va a detectar en qué dirección debe colocarse.
- Para insertarlos de manera automática hacemos lo siguiente:
- Para seleccionar las ventanas debajo de las cuales queremos insertar los radiadores, primero nos aseguramos de estar en el modo de selección de dibujo de todos los elementos y presionamos las teclas CONTROL + A para que se seleccionen todos los elementos.
- Hacemos clic en el icono de crear automáticamente radiadores, aparece una ventana en la que seleccionamos el tipo de radiador y presionamos el botón de crear radiadores automáticamente.

Lo siguiente que tenemos que hacer es conectar los radiadores, para eso primero podemos insertar la fuente de calor de nuestro edificio desde la pestaña de fuentes de calor, y establecer los parámetros de dicha fuente desde la tabla que contiene la información de la fuente seleccionada. Por ejemplo para el caso de una caldera, se debe introducir los valores de la perdida de carga y el volumen. (este paso se puede realizar antes o después de conectar los radiadores a la red de tuberías).
Ahora podemos proseguir a conectar los radiadores, pero antes se deben considerar los principios básicos para dibujar tuberías, al los que se puede acceder haciendo clic en el botón (mostrar dirección del dibujo), localizado al lado derecho de la pantalla. Luego podemos seleccionar la manera en que queremos dibujar las tuberías, de manera individual o en pares de tuberías y seleccionar el espaciamiento entre tubos. Si seleccionamos la manera individual las tuberías de impulsión y retorno se dibujan por separado, sin embargo, recomendamos utilizar el dibujo por pares de tuberías, que permite dibujar impulsión y retorno a la vez.
Una vez hemos dibujado nuestra red de tuberías, podemos conectar la fuente de calor y finalmente conectar los radiadores (Fig. 3). Existen dos formas de conectarlos, de manera manual o de manera automática. Se recomienda utilizar el modo automático ya que es la manera más fácil y rápida de conectar radiadores en Audytor SET. Lo hacemos siguiendo los siguientes pasos:
- Seleccionamos todos los radiadores presionando las teclas CONTROL + A.
- Seleccionamos la pestaña de radiadores.
- Hacemos clic en el botón conexión automática de radiadores, aparece un cuadro de dialogo y presionamos conectar.
Una señal de que se han conectado correctamente los radiadores, es que en la unión con las tuberías aparecen unos círculos en color blanco (Fig.4). También aparecen un círculo en color rojo y azul que nos indica que se han creado las tuberías verticales de manera automática en nuestro modelo 3D (Fig.5).

CÁLCULOS Y RESULTADOS
En este punto vamos a ver cómo realizar los cálculos y obtener los resultados de la instalación que hemos diseñado en Audytor SET. Primero debemos considerar realizar una prueba de cálculo una vez hemos terminado de diseñar una de las plantas de nuestro edificio, ya que si tenemos un edificio de varias plantas, podríamos ahorrar tiempo a la hora de detectar posibles errores cuando hemos introducido los datos en el modelo y evitar que se multipliquen al copiar el diseño en las demás plantas que sean iguales.
Antes de realizar los cálculos reales el programa revisa que los datos introducidos son correctos. Podemos seguir los siguientes pasos:
- Desde el menú de cálculos hacemos clic en calcular CC, haciendo clic en el botón de la calculadora o presionando la tecla F9. En el caso de que hayamos cometido algún error en la introducción de los datos, el programa no podrá realizar los cálculos y nos preguntara si queremos ver el diagnostico.
- Seleccionamos que si y aparece la ventana de diagnóstico, donde el programa nos indica (haciendo clic en el mensaje de la lista), donde están localizados el o los errores en el modelo. Una vez corregidos estos errores el programa si estará apto para realizar los cálculos reales.
- Hacemos clic en guardar los cambios y procedemos a realizar nuevamente los cálculos. Ahora nos aparece otro listado que corresponde al diagnóstico de los resultados.
- En resumen, hay tres fases principales para realizar los cálculos:
- Revisión de los datos, el programa revisa que estén completos y correctos.
- Realizar cálculos reales, por ejemplo cálculos de caudales.
- Revisión de los resultados, donde el programa analiza el sistema diseñado en base a algunos criterios, donde se genera un listado de mensajes que necesita ser evaluado por el diseñador.
En el listado del diagnostico de resultados, el programa Audytor SET utiliza un sistema de 4 colores para clasificar la relevancia de los mensajes (Fig. 6).
• El color blanco indica que es solo una información y probablemente no tengamos que tomar ninguna acción.
• El color amarillo indica una advertencia sobre algo que no esta bien, pero no es grave.
• El purpura nos indica que es algo serio y deberíamos considerar corregirlo de ser posible o económicamente factible.
• El color rojo indica que es un problema grave y si es posible deberíamos corregirlo.

Cabe destacar que cada diseñador tiene la responsabilidad de introducir los datos y de aceptar como validos los resultados. Ahora que tenemos los cálculos, podemos acceder a los resultados haciendo clic en la barra de menú.Tenemos la opción de ver los resultados en forma de tablas o en forma de dibujos con resultados. También podemos acceder a los resultados generales, que contienen la información general del proyecto, los tipos de tuberías, parámetros de la fuente de calor, etc. (Fig.7).

Es posible establecer un formato para la tabla si hacemos clic derecho sobre la misma. Podríamos seleccionar la información que queremos que aparezca. También tenemos la opción de resultados de las habitaciones, donde se muestra la información sobre la carga térmica y radiadores seleccionados para cada habitación. Otra tabla muy útil es la de ajustes, donde podemos ver el ajuste seleccionado para cada válvula de los radiadores. Así como la tabla de circuitos de tuberías, donde tenemos el acceso completo a los detalles de los cálculos, que nos puede ser útil en el momento de detectar algún problema en el sistema.
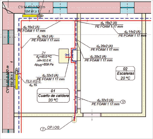
El programa ofrece dos tipos de dibujos, dibujos con datos y dibujos con resultados. Desde el menú resultados accedemos a los dibujos con resultados (Fig. 8). Para visualizar los resultados en los dibujos, tenemos que introducir las etiquetas manualmente en los dibujos con datos de la siguiente manera:
- Seleccionamos la pestaña de construcción, haciendo clic en el botón de etiquetas,
- Hacemos clic en cada elemento del dibujo a los que queremos insertar la etiqueta (tuberías, accesorios, etc..),
- Volvemos a ejecutar los cálculos,
- Seleccionamos el modo de visualización de resultados y aparecen las etiquetas de cada elemento con la información (diámetros de tuberías, tipos de aislamiento, etc.).
El formato de las etiquetas ofrece la posibilidad de ser editado, por lo que podemos decidir qué información y de qué forma queremos que aparezca en nuestro proyecto. Los dibujos con resultados siempre van a mostrar el estado de los últimos cálculos que hemos realizado. Esto quiere decir que cada vez que hagamos algún cambio en los dibujos con datos, se deben realizar nuevamente los cálculos para actualizar los resultados en el dibujo.

RESUMEN
Los programas Audytor se desarrollan constantemente de forma dinámica con el fin de dotar a los diseñadores de herramientas cada vez más avanzadas que les permitan ahorrar tiempo y eficientizar sus diseños.
En relación con la introducción de nuevas versiones del programa AUDYTOR, se organizan formaciones con especial énfasis en las nuevas funciones. Estas capacitaciones toman la forma de presentaciones a través de Internet o webinars. Las fechas de formación se publican de forma continua en el sitio web https://es.sankom.net en la pestaña entrenamiento.
Con motivo del lanzamiento de nuevos programas para la industria HVAC ofrecemos versiones gratuitas durante un periodo de 3 meses. Contacto: Esta dirección de correo electrónico está siendo protegida contra los robots de spam. Necesita tener JavaScript habilitado para poder verlo.
También, en YouTube en el canal en español:
www.es.sankom.net Se puede acceder a videos de capacitación sobre el diseño de instalaciones HVAC usando los programas AUDYTOR.




El artículo es una guía detallada donde se describen las funciones generales de los programas de la serie Audytor, con la finalidad de proporcionar información precisa sobre como diseñar sistemas de calefacción por convección